Scrivici
info@immobiliaritraverso.com
Chiamaci
Richiedici una Valutazione
Home
Vendite
Affitti
Mappa
Servizi
Agenzie
News
Contatti
Appartamento, Genova, Ge-Sestri Via Arrivabene 16
In Vendita
Ge-Sestri, Ge-Sestri Via Arrivabene 16 Genova
€ 150.000
120 / m
2
Riferimento
7 Arrivabene
Superfice
120 m
2
Vani
7 Vani
Bagni
1
Descrizione
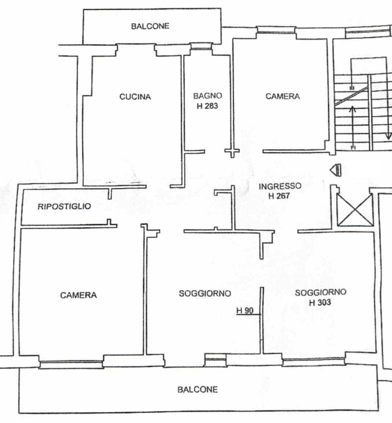
Sestri alta Arrivabene in caseggiato moderno offriamo in vendita appartamento di 7 vani posto al piano sesto ( con ascensore ) composto internamente da ingresso - salone doppio - 2 camere matrimoniali - cucina abitabile - bagno e ripostiglio. Balconate. Ottime condizioni - Cantina - Per ulteriori info e appuntamenti contattare direttamente l'ufficio.
Dettagli
Tipologia:
Appartamento
Sezione:
Immobile Residenziale
Stato al Rogito:
Libero al Rogito
Condizioni:
Ristrutturato
Anno Costruzione:
1960
Spese Condominiali:
160,00 Mensili
Piano:
6
Locali:
3 Locali
Riscaldamento:
Centralizzato
Cucina:
Abitabile
Arredato:
Non Arredato
Bagni:
1
Ascensore:
Si
Costruzione:
Civile
Numero Vani:
7 Vani
Nuovo:
Si
Esposizione Esterna:
Si
Materiale Bagno:
Ceramica
Materiale Cucina:
Ceramica
Materiale Soggiorno:
Graniglia
Materiale Camera:
Graniglia
Box:
No
Persiane e Tapparelle:
Tapparelle Plastica
Infissi:
Doppio vetro / Metallo
Classe Energetica
G 149,57 kWh/m²a
Caratteristiche
Porta Blindata
Cantina
Posizione
Street View
Annunci Simili
Nuovo
In Vendita
€
85.000
84 m
2
Appartamento, Ge-Sestri
Ge-Sestri ponente Via Olgiati 7, Genova
Dettagli
Sestri, adiacentissimo Viale Canepa ( Via Olgiati ) offriamo in vendita in caseggiato antico in buone condizioni appartamento posto al piano portone ( secondo fuori terra ) di 6 vani classici, rimasto
84 m
2
6 Vani
1 Bagno
In Vendita
€
80.000
84 m
2
Appartamento, Ge-Sestri
Ge-Sestri Via Santa Maria della Costa 29, Genova
Dettagli
Sestri alture Via Santa Maria della Costa offriamo in vendita appartamento posto al terzo piano di un edificio in buono stato manutentivo, composto all'interno dall'ingresso, 2 camere oltre la sala,
84 m
2
6 Vani
1 Bagno
In Vendita
€
110.000
102 m
2
Appartamento, Ge-Sestri
Ge-Sestri ponente Via insurrezione 10, Genova
Dettagli
Sestri ponente Via Insurrezione offriamo in vendita appartamento di 6 vani e mezzo posto al secondo piano composto internamente dall'ingresso, 3 belle stanze oltre tinello e cucinino, bagno ripos
102 m
2
6 Vani e mezzo
1 Bagno
Agenzia di Sestri Ponente
0103045923
Sono interessato a questo immobile [Rif. 7 Arrivabene] e vorrei avere più dettagli.
Dichiaro di aver preso visione e di accettare
l'informativa sulla Privacy
ai sensi del Regolamento (UE) 2016/679.
Invia Messaggio
In Evidenza